Nous contacter
activite

Caen – Local d’activité de 165.00m² à louer

165.00 m²
Disponibilité : Immédiate

Description

Dédié à la location, l’immeuble « Res Publica » comprend 13 bureaux et 6 locaux d’activité avec belle hauteur sous plafond, disposant de mezzanines et sanitaires.
Livré en 2012, cet immeuble d’une superficie de 2 800 m² au total est à taille humaine et bénéficie de facilités d’accès grâce à sa desserte immédiate par la ligne T3 du tramway et par les
bus Twisto. Des places de parkings privatives sont également
réalisées.

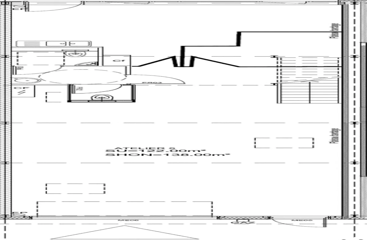
LOT 5
Cellule d’activité de 165 m² dont 42 m² de mezzanine.
Réalisée selon la règlementation thermique 2005
> RDC :
– Une partie de 80 m² environ avec plus de 5.3 m de hauteur sous plafond.
Porte sectionnelle automatisée et projecteur extérieur en façade.
– Bureau / salle de pause 25 m² environ avec coin évier
– Local de réserve 5 m² environ
– Bloc sanitaire avec 2 WC
> R+1 :
Une mezzanine aménagée en bureau de 42 m² avec plancher collaborant en béton
surfacé (surcharge d’exploitation 500 kg/m² )
Un escalier d’accès avec garde-corps
> Stores intérieurs manuels sur chassis vitrés des façades nord
> Pré-câblage informatique et téléphonique avec installation d’une baie de brassage permettant le travail en réseau
> Eclairage par luminaires fluo étanches
> Compteur électrique et eau individuels
> Accessible Très Haut Débit (fibre)

Surface : 165 m²
Loyer : 9080 € HC HT / an

Prestations

Ascenseur : Non

Accessible PMR : Non

Interphone : Non

Vidéophone : Non

Localisation

Loyer annuel
9080 € HT • HT/HC/an
Contact
Réalisation associée
RES PUBLICA | L’immeuble-atelier, quartier Fresnel à Caen
Découvrir