Nous contacter
activite

Douvres-la-Délivrande – Terrain d’activité de 2502.00m² à vendre

2502.00 m²
Disponibilité : immédiate

Description

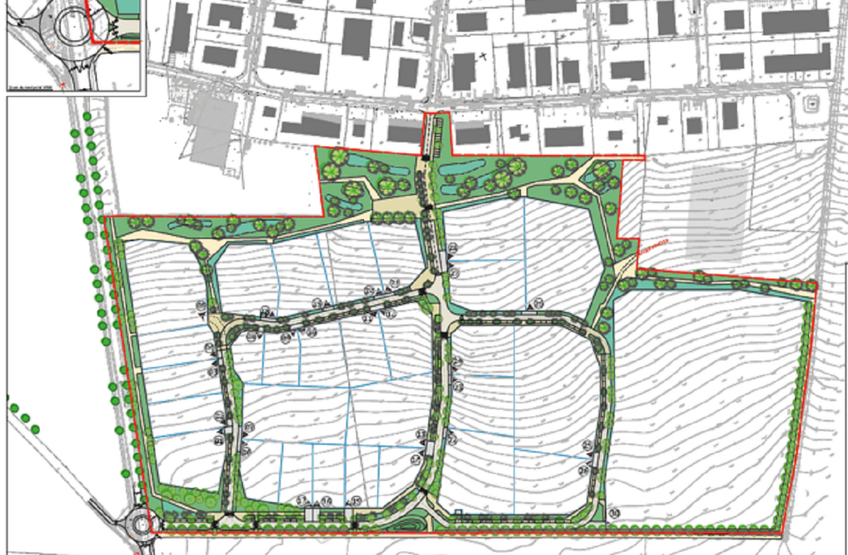
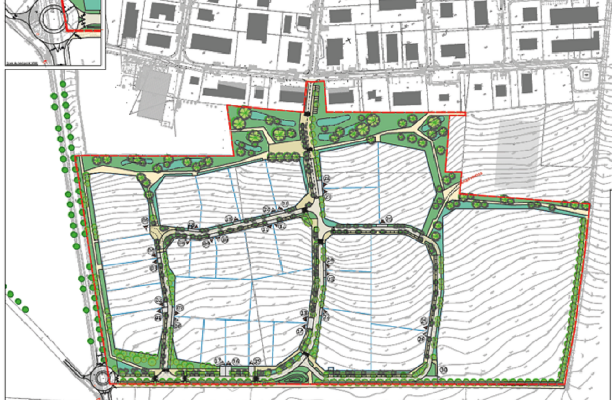
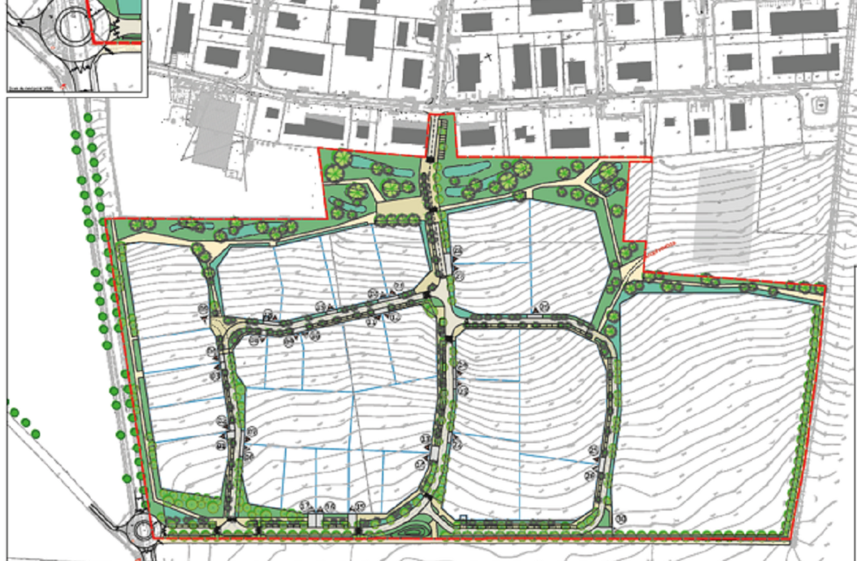
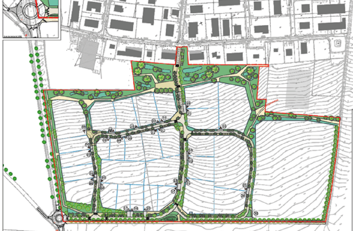
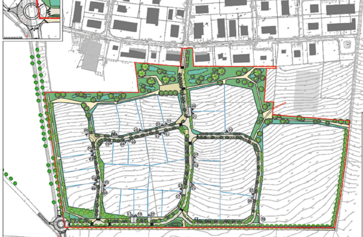
Parcelle de 2502 m² viabilisée à vendre à Douvres-la-Délivrande sur le Parc d’Activité Coeur de Nacre.

Un positionnement stratégique,
Proche des grands axes,
Aménagement paysager qualitatif,
Parc labélisé RSE Normandie ReSponsablE

Parcelles viabilisées de 1 773 m² à 5 100 m²

Prix de 76 800 à 229 500 € HT

LOT 19 : 2 502 m²
Prix de vente : 96 575 € HT

A l’initiative de la Communauté de communes Cœur de Nacre, Normandie Aménagement développe le Parc d’activités Cœur de Nacre, Zone d’Aménagement Concerté, extension de la Zone d’Activités Économiques de la Fossette, située à Douvres-la-Délivrande.

Positionnée au sud de la zone d’activités de la Fossette existante, l’extension « Parc d’activités Cœur de Nacre » s’étend sur 21 hectares.

Elle vise à développer l’activité économique et à encourager la création d’emplois sur le territoire de la Communauté de communes.

UNE OFFRE FONCIERE DIVERSIFIEE avec au total, 32 parcelles proposées à la vente :

 “Les informations sur les risques auxquels ce bien est exposé sont disponibles sur le site Géorisques : www.georisques.gouv.fr”.

Prestations

Ascenseur : Non

Accessible PMR : Non

Interphone : Non

Vidéophone : Non

Localisation

Prix de vente
96575 € HT
Réalisation associée
Parc d’activités Cœur de Nacre | Douvres-La-Délivrande
Découvrir