Nous contacter
habitat

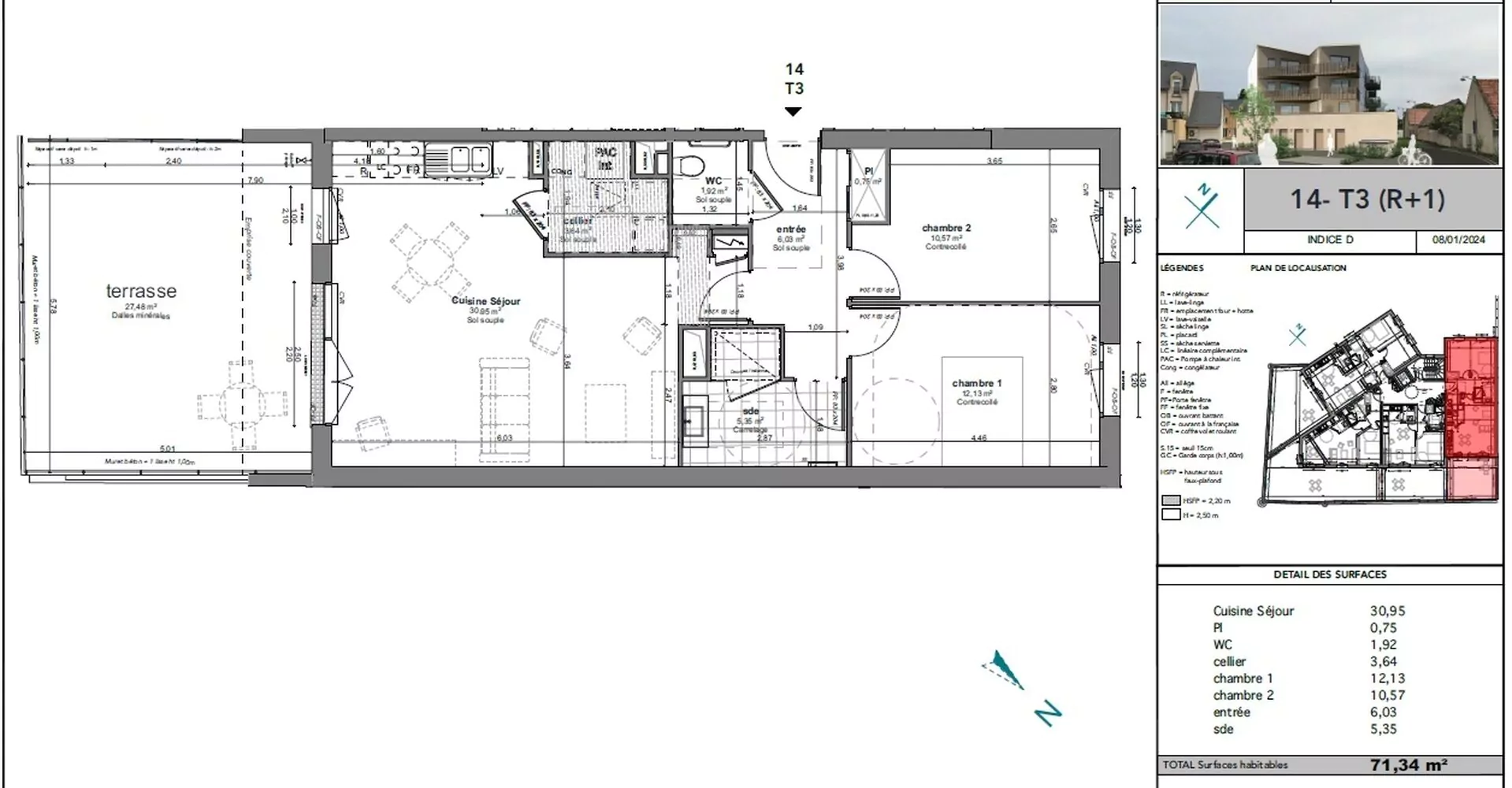
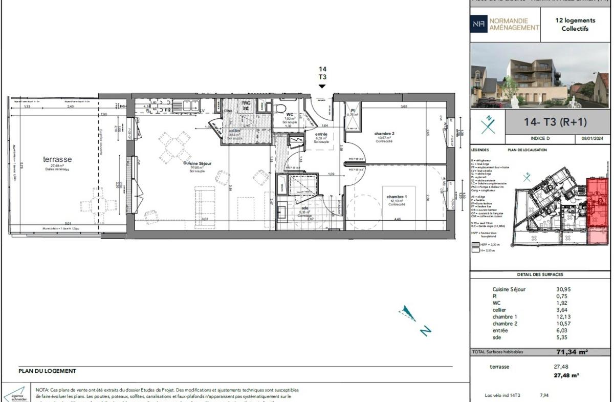
Hermanville-sur-Mer – Appartement de 71.34m² à vendre

71.34 m²
Disponibilité : 31/01/2028

Description

FRAIS DE NOTAIRE OFFERTS pour toute signature d’un contrat de réservation !

A Hermanville-sur-Mer, en coeur de bourg, Solstice est un programme neuf proche tous commerces, parcs, services et professionnels de santé.

Livraison prévisionnelle : janvier 2028.

Appartement T3 de 71.34 m² donnant sur terrasse privative de 27.48 m².
Ce bel appartement de type T3 combine confort, modernité et fonctionnalité.
Séjour/cuisine de 30.95 m² exposé Sud/Est, 2 belles chambres (12.13 m² et 10.57 m²), salle d’eau, wc séparés, cellier, entrée avec placard.

Immeuble RE2020 – Logements accessibles PMR.

1 place de parking en rez-de-chaussée, privative et sécurisée
1 local vélo individuel de 7.94 m²

PRESTATIONS COMMUNES
Immeuble sécurisé
Ascenseur

Prix de vente : 300 000 €

D’autres lots sont disponibles à la vente , n’hésitez pas à nous consulter.

“Les informations sur les risques auxquels ce bien est exposé sont disponibles sur le site Géorisques : www.georisques.gouv.fr”.

Prestations

Ascenseur : Oui

Accessible PMR : Oui

Interphone : Oui

Vidéophone : Non

Localisation

Vidéos

Prix de vente
300000 € TTC
Contact
Réalisation associée
Résidence Solstice | Hermanville-sur-Mer
Découvrir