Nous contacter
activite

Hermanville-sur-Mer – Bureau de 35.75m² à vendre

35.75 m²
Disponibilité : 30/09/2027

Description

Hermanville-sur-Mer – A vendre bureau de 35 m²

Venez rejoindre cette nouvelle maison de santé en cœur de bourg dont la livraison est prévue au plus tard le 30 septembre 2027.

Des professionnels de santé sont déjà positionnés: des médecins généralistes, infirmières, sages-femmes, pédicure podologue, médecin ostéopathe, orthophonistes et une pharmacie en RDC.

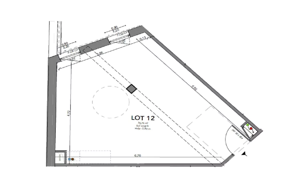
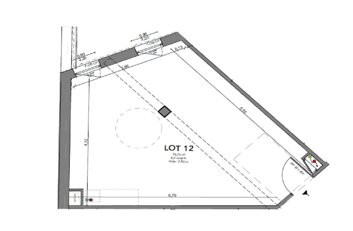
LOT 12
Local professionnel individuel de 35.75 m² bénéficiant d’une salle d’attente commune, de sanitaires communs destinés à la patientèle et de sanitaires communs réservés aux professionnels de santé.
Climatisation réversible avec compteur individuel. Arrivée d’eau et évacuation en attente pour installation d’un lavabo.
La Mairie, acquéreur d’un lot avec terrasse proposera une convention de mise à disposition au profit des professionnels de cet immeuble (salle de pause / réunion).

LOT 12
Prix 160 000 € HT soit 192 000 € TTC.

D’autres lots sont disponibles à la vente , n’hésitez pas à nous consulter.

“Les informations sur les risques auxquels ce bien est exposé sont disponibles sur le site Géorisques : www.georisques.gouv.fr”.

Prestations

Ascenseur : Oui

Accessible PMR : Oui

Interphone : Non

Vidéophone : Oui

Localisation

Prix de vente
160000 € HT
Contact
Réalisation associée
Maison de santé | Hermanville-sur-Mer
Découvrir